Голосование проводится в рамках проекта «Формирование городской среды». В этом году в рамках него строят новый сквер на пересечении улиц Чехова и Мимоз.
Для благоустройства в следующем году предлагаются три объекта: бульвар имени Ивана Щипакина, сквер по ул. Ленина в районе дома № 399 и сквер по ул. Руставели в районе дома № 34А.
Голосование приближается к концу. У жителей города ещё есть возможность выбрать территорию до 30 мая.
На данный момент лидирует бульвар имени Ивана Щипакина. Данный проект набрал 28 тысяч голосов. За сквер на ул. Ленина проголосовали 11 тысяч человек, за сквер по ул. Руставели – 9 тысяч.
Бульвар имени Ивана Щипакина
Территория будет разбита на природные зоны России: тундра, тайга, степи и лесостепи, пустыни и полупустыни, зона высокой поясности. Они будут отличаться ратсительностью, беседками, лавочками, скульптурами.
Жители города смогут ознакомиться с особенностями природных зон, скульптурами, отображающими тот или иной регион.
Сквер по ул. Ленина, в районе дома № 399
Проектом благоустройства предусмотрен ремонт фонтана, устройство тротуарной плитки, замена асфальтобетонного покрытия, замена детского игрового оборудования, установка спортивного оборудования, замена скамеек и урн, озеленение.
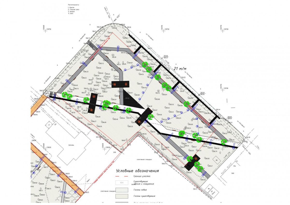
Сквер по ул. Руставели, в районе дома № 34А
Предполагается создать единую территорию отдыха из детской игровой, спортивной и прогулочной зон. Также планируется обустроить парковку и тротуар из брусчатки, установить лавочки, урны, комлекты столов с лавочками, провести освещение и озеленение.
Новый сквер станет местом для досуга жителей частного сектора, приживающих на ул. Азовской, ул. Руставели, пр. Можайского, ул. Попова, пр. Карьерного, пер. Правды ул. Щаденко, и многих других.
Проголосовать за объект благоустройства на 2022 год можно на сайте 26.gorodsreda.ru.


























